





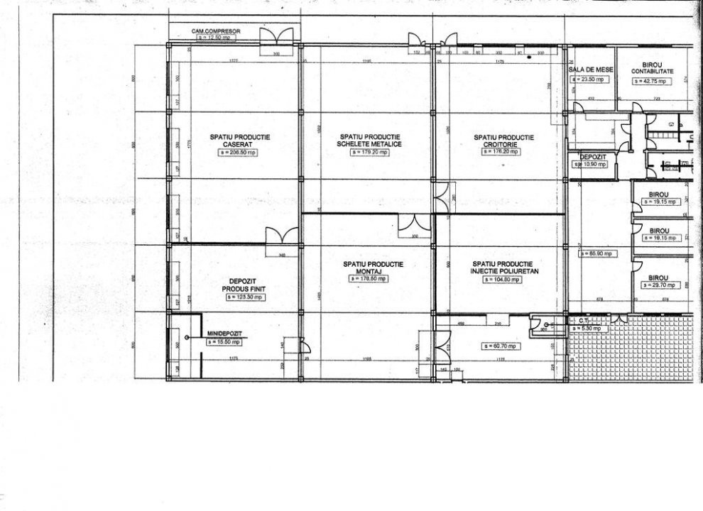
Spatiu generos Topoloveni - Arges, - de inchiriat - o proprietate cu caracter industrial-comercial, cu acces catre autostrada A1 si intr-o zona preponderent industriala, cu constructii tip depozite, hale si birouri aferente, cu o suprafata de 2.645 mp teren. Amplasamentul industrial-comercial are o suprafata de 1386 mp si este format din: - Birouri , sala de mese, vestiar, grupuri sanitare, spatiu de productie, spatiu de depozitare, spatiu de incarcare marfa. Este pozitionat pe DN 7 PItesti -Bucuresti la intrarea in localitatea Topoloveni in imediata apropiere a drumuliui de acces la A1. Proprietatea este racordata la toate utilitatile, dispune de centrala termica pe gaz cu instalatie clasica pe calorifere. Pentru mai multe informatii va stau cu drag la dispozitie cu programarea unei vizionari.