




















Smarald City este un reper pentru ceea ce înseamnă cele mai înalte standarde în conceperea unui ansamblu de locuințe, luând în considerare principalele nevoi ale locatarilor, dar și ale comunității.
Proiectul este în faza de început, s-a turnat deja fundația pe piloni la prima unitate, acesta se va finaliza în primăvara anului următor , 2027.
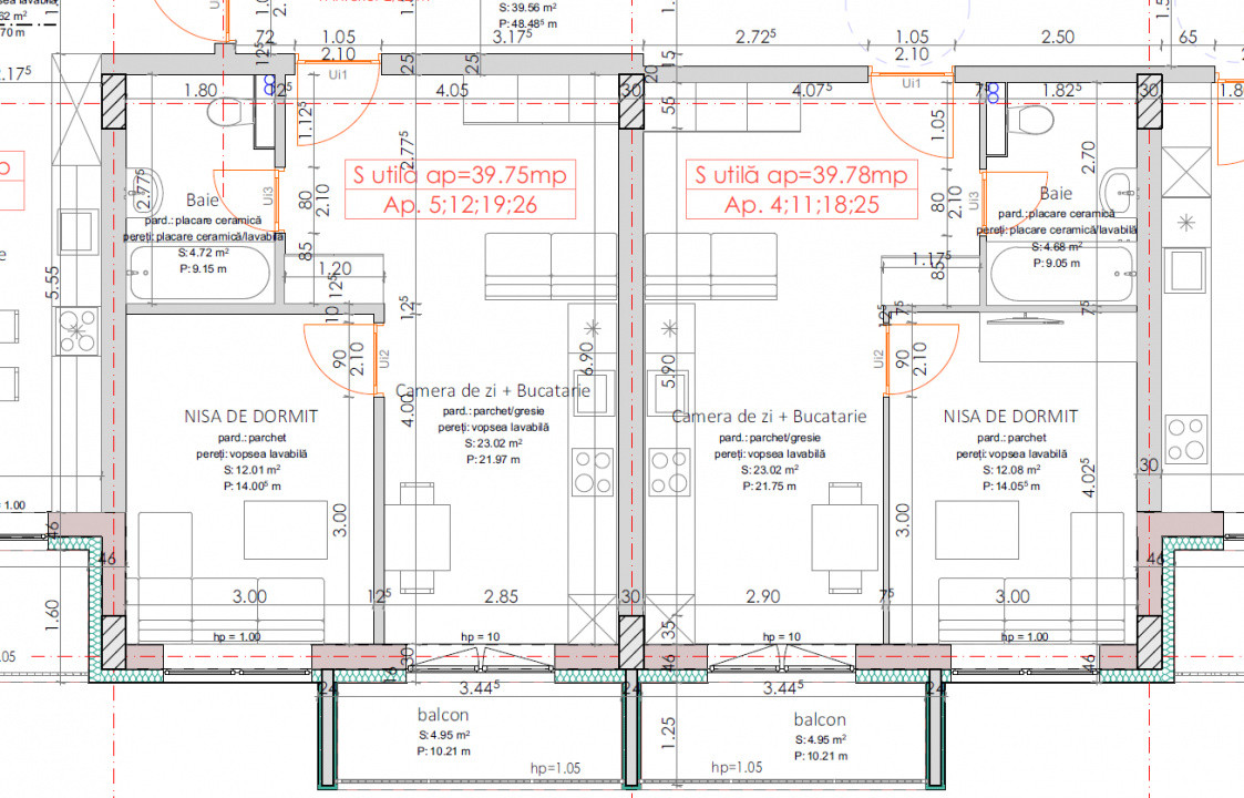
Vor fi apartamente cu 2 camere, 3 camere, studiouri și penthouse .
Dacă ai un stil de viață dinamic, independent, antreprenorial, atunci este exact ceea ce ți se potrivește. Detaliile care formează întregul și asigură o continuitate a spațiului și totodată o durată crescută de viață a construcției sunt finisajele, sistem de fundare pe stâlpi din beton armat, pereți exteriori cărămida de 40 cm, 10 cm vată bazaltică, excelent izolator termic și acustic, tâmplăria PVC pentacameral cu 3 straturi de sticlă LOW-E 4 seasons , pentru a oferi un plus de confort, balustradă din sticlă securizată, hidroizolația și pardoseala balcoanelor vor fi standardizate pentru a asigura o durată crescută de viață construcției, încălzire în pardoseală, centrală termică pe condens individuală, ușă metalică de înaltă siguranță, pregătire aer condiționat, interiorul este semifinisat la predare. Toate blocurile de apartamente sunt prevăzute cu lift, interfon, loc de parcare inclus în prețul apartamentului, spații verzi, locuri de joacă pentru copii, spații comerciale la parter.
Pentru detalii suplimentare referitoare la apartamente, prețuri, metodă de plată, creditare sau alte detalii sunați cu încredere.